
Кран-балка телескопическая

Для комплектации исследовательских судов разработан комплект телескопических кран-балок, предназначенных для вывода и спуска океанологического оборудования за борт с помощью сторонних океанологической кабель-тросовой и гидрографической тросовой электрических лебёдок.

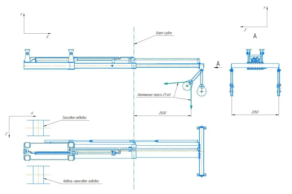
Основные параметры и характеристики
Исполнение………………………………………………… телескопическая кран-балка
Тип привода выдвижения секций кран-балки…………… гидравлический
Количество выдвижных секций, шт………………………………………………………… 2
Максимальный вылет за борт, м……………………………………………………………2,5
Грузоподъемность при максимальном вылете т………………………………. 2,1
Количество шкивов на ноке, шт……………………………………………………………… 2
Управление кран-балкой ……………………………………………. с местного поста
Рабочее давление гидросистемы, МПа……………………………………………….. 18
Рабочий потребный расход, л/мин……………………………………………………… 22
Питание электрооборудования КБЭГ, В…………………………………………….. 24
Конструктивная масса, т……………………………………………………………………….. 2,7
Волнение моря ………………………………….. до 5 баллов (SWH до 4 метров)
Рабочие температуры …………………………. от минус 30 °С до плюс 34 °С
Сертификация ………………………………………………………………………………….. РМРС
Контакты
В соответствии с регламентом допуска посетителей на территорию предприятия, заказ пропусков осуществляется не позднее, чем за сутки до предполагаемого визита.
Телефон
+7 (921) 400 21 61


